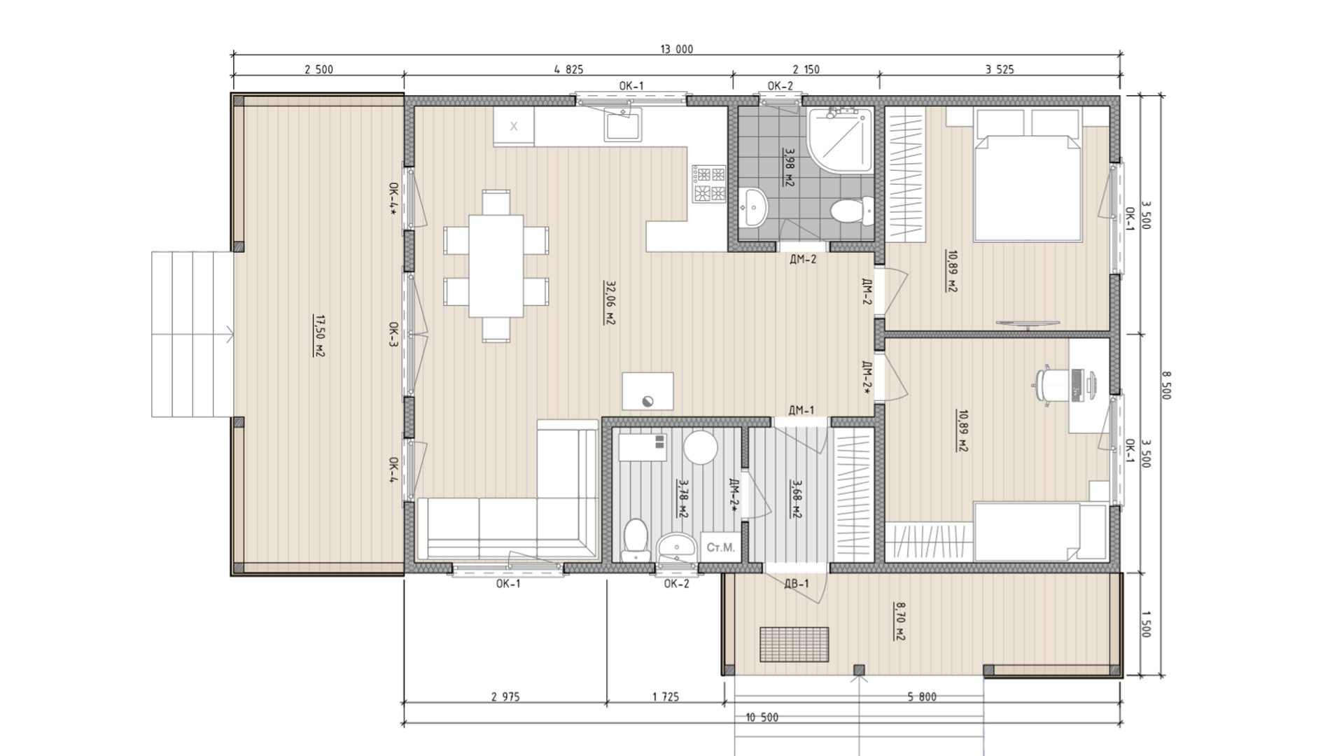
Проект одноэтажного каркасного дома «Сканди-Мини. Графская славянка» 13х8,5 м

Размер: 13х8,5 м

Общая площадь: 99,7 м2

Жилая площадь: 73,5 м2

Площадь террасы: 17,5 м2+ 8,7 м2

Цена: 3 675 000 Р

Получить консультацию:

Тел: +7 (812) 408-30-08
Написать в ВК
Написать в Телеграм

Планировки




Фасады


Проект каркасного дома 13х8,5 м
Каркасный дом 13х8,5 м
Проект дома 13х8,5 м
Проект каркасного дома

Рассчитайте цену вашего дома



Поиск по сайту