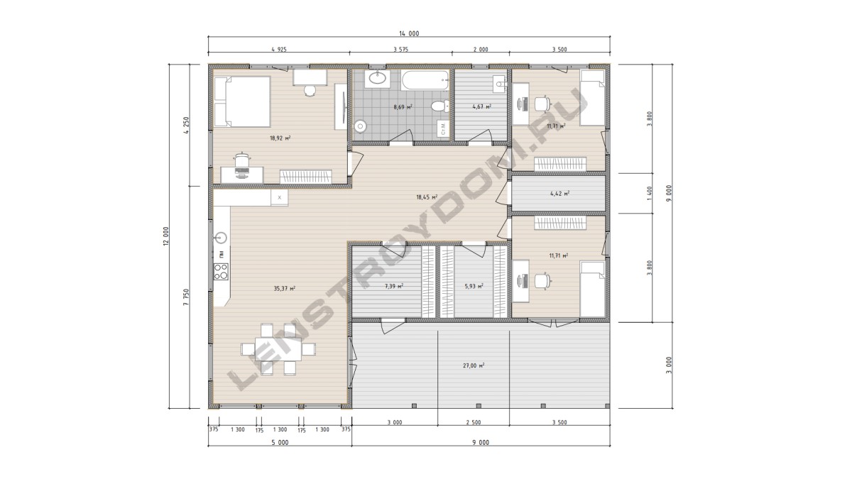
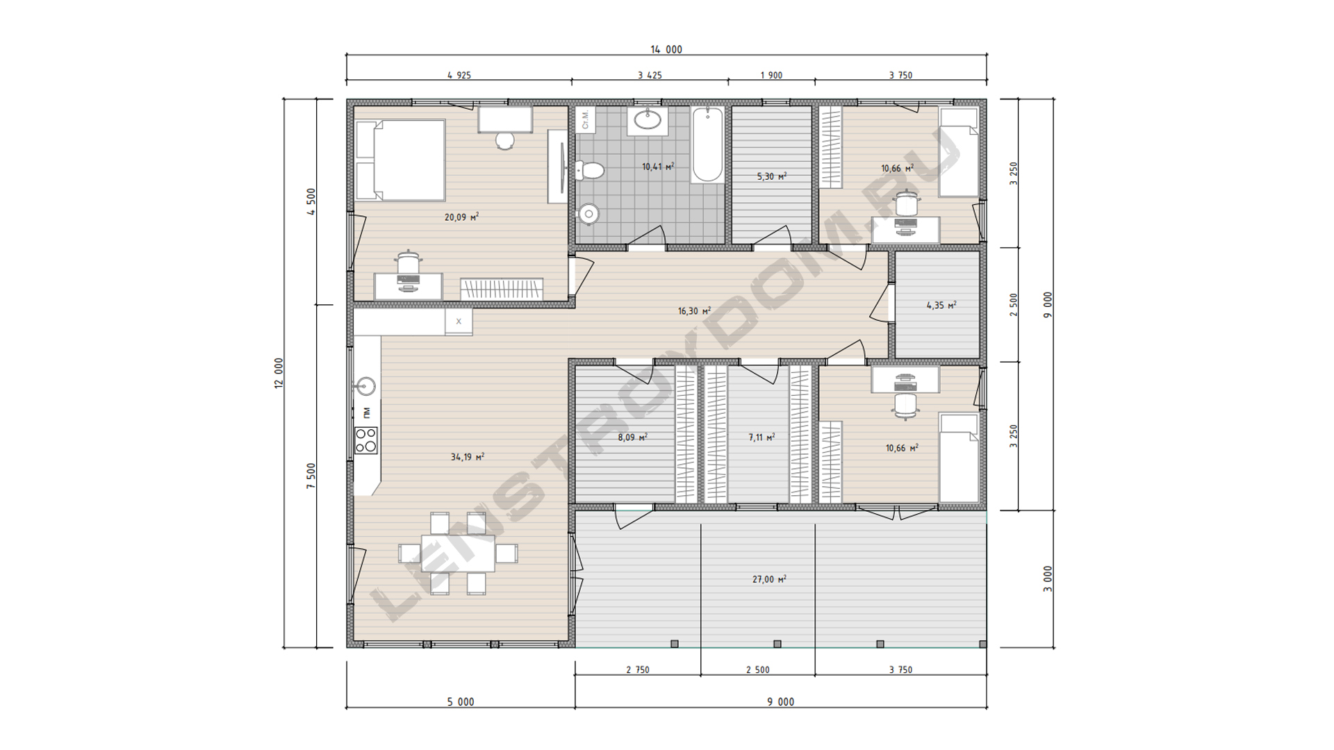
Размер: 14х12 м
Площадь застройки:
168 м2
Общая площадь: 168 м2
Жилая площадь: 141 м2
Площадь террасы: 27 м2
Цена: 6 535 000 Р
Это отзеркаленная и увеличенная версия нашего популярного проекта «Калевала».
В доме будут предусмотрены три спальни, большая кухня-гостиная, совмещенный СУ и много подсобных помещений. При необходимости планировка может быть изменена под заказчика, для этого у нас в компании есть свой архитектурно-конструкторский отдел.
Планировки


Фасады



