Размер: 9х12 м
Площадь застройки: 
108 м2
Общая площадь: 108 м2
Жилая площадь: 84 м2
Площадь террасы: 24 м2
Цена: 4 285 000 Р
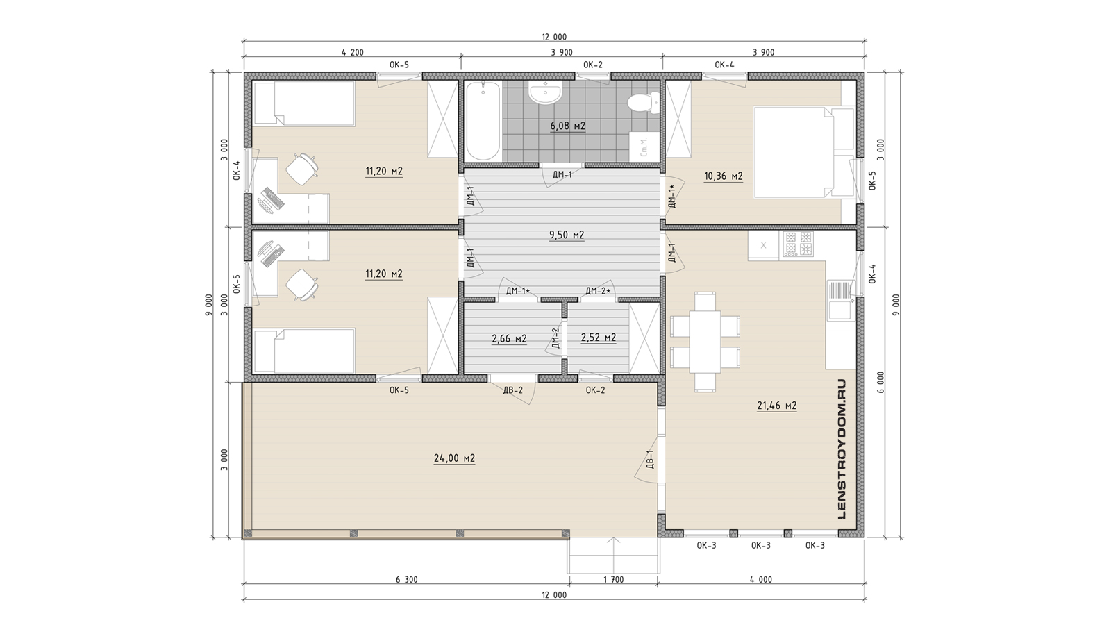
Разработали для нашего заказчика интересный проект каркасного дома в скандинавском стиле «Калевала». Дом имеет немаленькие размеры 9х12 м, общую площадь 108 кв.м из которых 24 кв.м это крытая терраса. Из особенностей экстерьера это разноуровневая крыша, большие окна в пол и выход прямо из гостиной на террасу, а главной изюминкой является редкий антрацитовый цвет фасадов.
В нашем каркасном доме — три просторные спальни и внушительная кухня гостиная, в которой можно собираться за столом, всей семьей. Большой объединенный санузел, который при желании можно сделать раздельным, путем установки перегородки, или организовать там котельную. Также в доме размещаются гардеробная, тамбур, и большой холл. Практичный дом для большой семьи.
Планировка
Фасады




