
Закончили работы на объекте в п. Терволово, Гатчинский р-н. Где мы осуществляли строительство одноэтажного дома/бани «Морские сезоны» 6х7,5 м.
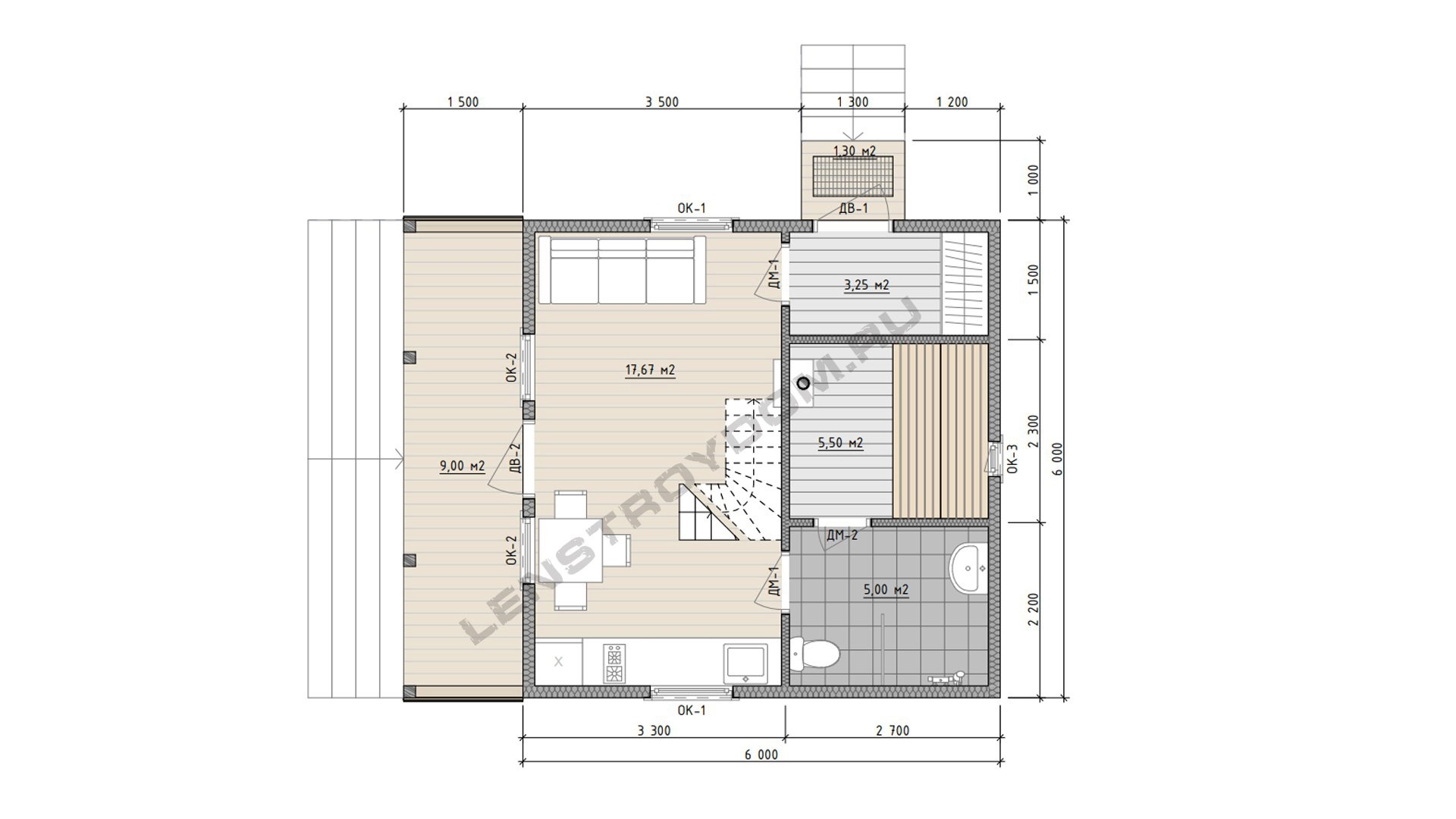
Общая площадь застройки 6х7,5 м, жилая основа 6х6 м + терраса 6х1,5 м + небольшое крыльцо 1,3х1 м. В доме размещаются кухня-гостиная, сауна, помывочная совмещенная с СУ и прихожая, над помещениями предусмотрена небольшая антресоль.
Дом утеплен минерально-ватным утеплителем — пол и крыша в зоне «второго света» и антресоли 200 мм, стены 150 мм + 25 мм плиты Белтермо, перегородки 100 мм.
В качестве отделочного материала снаружи дома применяется скандинавская доска 23х150 мм. Внутри отделка выполнена только на потолке, с применением евровагонки и СУ отделан гипсокартоном, в остальной части дома отделка не предусмотрена, так как дом строился в комплектации "Тёплый контур", с частичной внутренней отделкой. В качестве кровельного покрытия использовался кликфльц "Grand Line" 0,5 мм, матовый. Цвет: RAL 7024
Получить консультацию:
Тел: +7 (812) 408-30-08
Написать в ВК
Написать в Телеграм
Написать в чат на сайте





Фотоотчет о строительстве