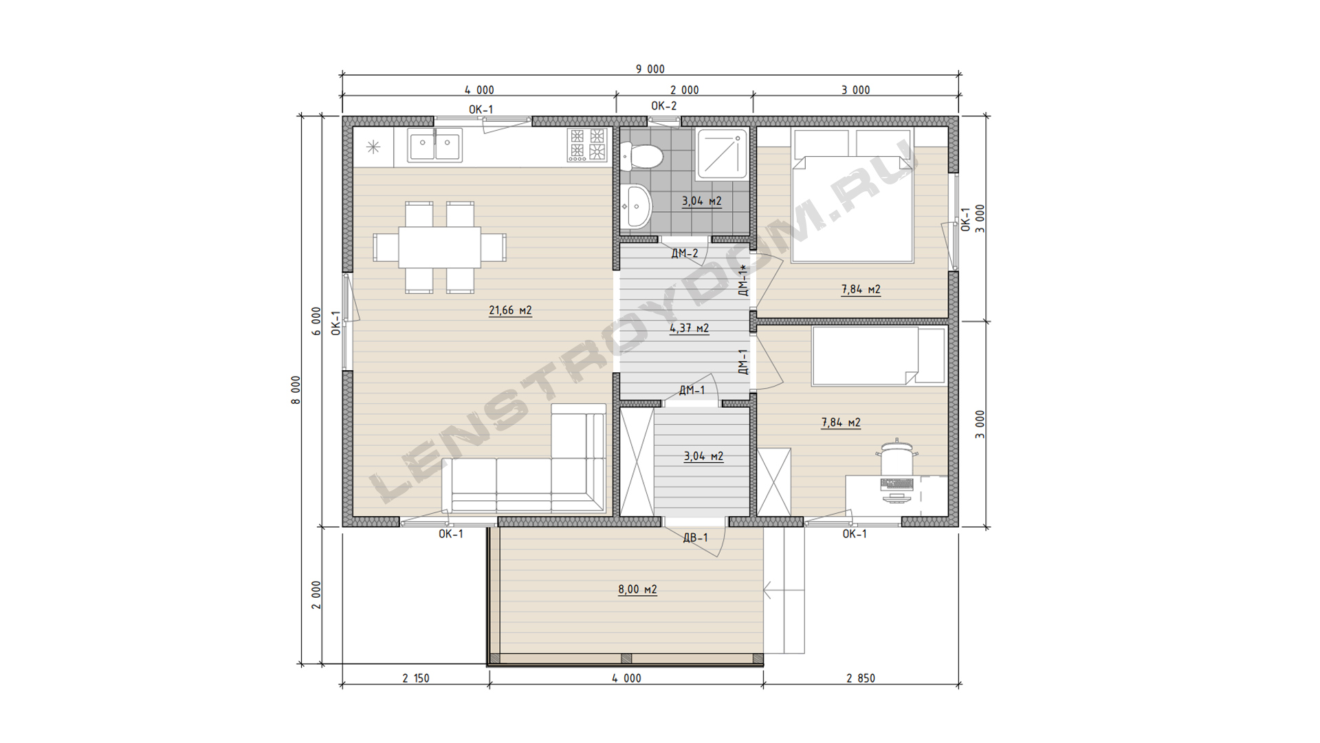
Заезжаем на строительство одноэтажного каркасного дома в Подгорье. Это будет наш популярный проект Сканди-Мини 9х6 м. Свайно-винтовой фундамент уже готов, завозим материал и оборудование для быта бригады.
Следите за новостями и фото- видеоотчетами в наших соцсетях.
https://vk.com/lenstroydom
https://www.instagram.com/lenstroydom/
https://www.youtube.com/channel/UCTs94jXu6OQiGoSW7V7QyzQ
https://ok.ru/lenstroydom
Больше проектов в нашем каталоге.
